do góry
Strona główna / Gospodarka / Strefa Aktywności Gospodarczej / Wniosek na kompleksowe uzbrojenie Strefy Aktywności Gospodarczej

Wniosek na kompleksowe uzbrojenie Strefy Aktywności Gospodarczej

W dniu 22 grudnia Zarząd Województwa Małopolskiego podjął ostateczna decyzję i zatwierdził listę projektów w ramach konkursu 11/2009/4.3.b dla Schematu 4.3 B Strefy aktywności gospodarczej o powierzchni powyżej 20 ha Małopolskiego Regionalnego Programu Operacyjnego na lata 2007-2013.

W wyniku oceny strategicznej zostały przyjęte 4 projekty: Rozwój Strefy Aktywności Gospodarczej w Skawinie, Wzmocnienie zdolności przyjęcia nowych inwestorów przez rozbudowę infrastruktury Strefy Przemysłowej – Gmina Dobczyce, Kompleksowy
rozwój strefy aktywności gospodarczej - MARR Business Park i Kompleksowe uzbrojenie terenów pod Strefę Aktywności Gospodarczej Małopolski Zachodniej – Gmina Zator.

Wszystkie projekty wg. przeprowadzonej oceny strategicznej uzyskały jednakową liczbę punktów jednakże projekt Gminy Zator angażuje najwięcej środków finansowych tj. 27 395 275,40 zł w tym 21 261 381,27 zł pochodzi z dotacji - realizując kompleksowe uzbrojenie terenów inwestycyjnych.

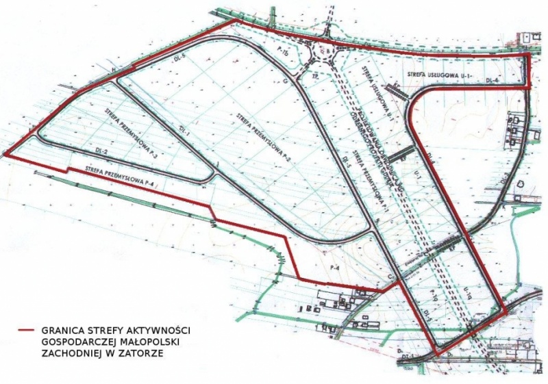
Informacje o projekcje:

Przedmiotowy projekt będzie realizowany w okresie od III kwartału 2010 roku do II kwartału 2012 roku i obejmował będzie III etapy realizacji. W swoim zakresie przewidziano kompleksowe uzbrojenie terenów pod Strefę Aktywności Gospodarczej Małopolski Zachodniej aby stworzyć korzystne warunki do inwestowania i prowadzenia działalności gospodarczej na terenie Gminy Zator.

Przedsięwzięcie obejmować będzie:

  • budowę drogi zbiorczej DZ-1 (przedłużenie ul. Jana Pawła II);
  • budowę dróg lokalnych w obrębie stref: DL-1, DL-2, DL-3, DL-4, DL-5 wraz z sieciami głównymi uzbrojenia terenu;
  • budowę i przebudowę ul. Juliusza Słowackiego w Zatorze wraz z rozbudową i budową infrastruktury;
  • przebudowę nawierzchni ul. Kolejowej i drogi do Podolsza w związku z projektowaną kanalizacją opadową do odbiorników.
  • Budowę sieci głównych infrastruktury technicznej projektu, biegnących w pasach projektowanych dróg, które obejmują:
  • kanalizację sanitarną
  • kanalizację opadową
  • sieci wodociągowe
  • sieci oświetlenia elektrycznego dróg
  • Przebudowę sieci elektrycznej napowietrznej na kablową
  • Przebudowę sieci teletechnicznej (w rejonie skrzyżowania Drogi Krajowej nr 44 z ulicą Kopernika (DL3)

Projekt jest pierwszym etapem tworzenia stref aktywności gospodarczej w mieście. Udostępnione zostaną tereny o powierzchni 37,42 ha dla lokowania przez inwestorów na nich działalności przemysłowej i usług komercyjnych.

Agencja Interaktywna IntraCOM.pl
Urząd Miejski Zator Plac Marszałka
Józefa Piłsudskiego 1,
32-640 Zator
Telefon:
+48 33 841 22 12
E-mail:
gmina@zator.pl